作者hihisnoopy (蛋餅控)
標題[請益] 兩房格局客變請益
時間2024-08-27 21:25:17
最近要客變了
好難下決定
上來求助
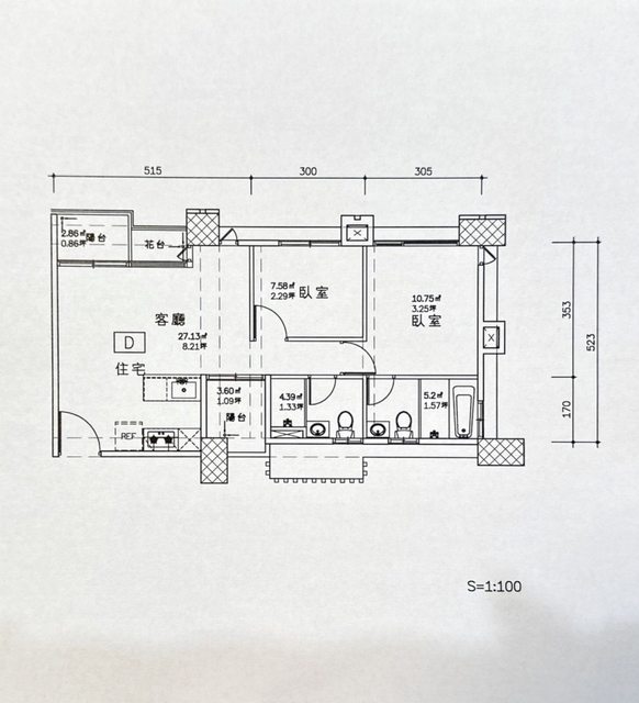
先附上建商原始圖
https://i.imgur.com/umt3Ao5.jpeg
目前打算主臥往次臥拓寬
拓寬的部分放置深65-70cm的櫃子
次臥也往客廳拓寬一些
門往右移一點
大概這樣
https://i.imgur.com/dR2fQ9G.jpeg
讓我為難的是廚房
有點介意瓦斯爐旁邊是冰箱
不確定這樣位置配置會不會有危險
如果電器櫃和瓦斯爐位置對調
又怕煮菜同時烤箱或電鍋煮飯會有影響
上網查好像使用的時候要把電器拉出來
不然會有水蒸氣在櫃子裡的問題
另外建商配的電器櫃只有兩格能放電器
改三格是不是比較好呀 三格都做45公分 抽拉盤 應該夠用吧
求求大家幫幫忙
感謝不盡!!
--
※ 發信站: 批踢踢實業坊(ptt.org.tw), 來自: 42.72.158.155 (臺灣)
※ 文章網址: https://ptt.org.tw/home-sale/M.1724765119.A.757
→ sagarain: 客廳沙發電視要放哪 08/27 21:52
→ hihisnoopy: 電視靠左邊牆 沙發靠背與花台切齊 沙發後到次臥那個 08/27 22:19
→ hihisnoopy: 空間預計放個小書桌 跟櫃子 08/27 22:19
推 l98: IH爐或瓦斯爐? 08/28 00:01
→ l98: 不然冰箱要放備料區旁邊,系統櫃遮起來,但動線會卡 08/28 00:03
→ l98: IH爐的話,冰箱放旁邊用系統櫃遮起來是還好 08/28 00:04
→ l98: 高45公分?要看你電器大小還要預留散熱/取出空間 08/28 00:05
→ hihisnoopy: 是瓦斯爐 電器都還沒買 我是看網拍電器估的 謝謝您 08/28 07:05
→ sunrisemew: 改三格要看你覺得好不好用 太低彎腰蹲低 太高不好拿 08/28 11:28
推 z5411: 主臥跟次臥 都弄大一點 305 不太夠 08/28 11:52