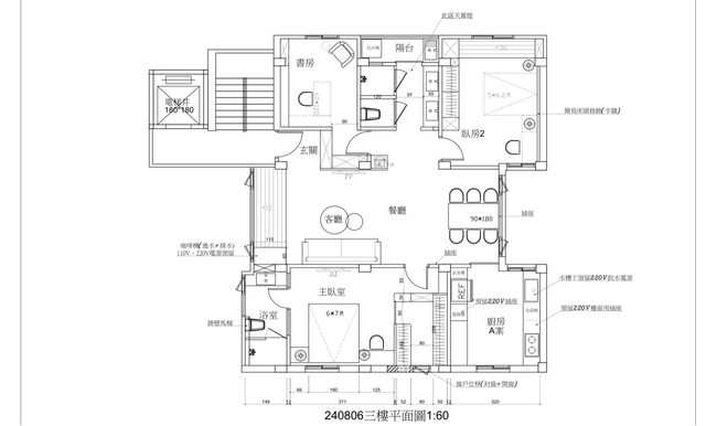
1.室內空間40坪(不含樓梯電梯) 2.家中老屋改建,未來預計兩大兩小自住使用 想請問格局上有沒有需要改善的地方,謝謝大家 https://i.imgur.com/cHyFX4Q.jpeg
-- ※ 發信站: 批踢踢實業坊(ptt.org.tw), 來自: 36.238.71.153 (臺灣) ※ 文章網址: https://ptt.org.tw/home-sale/M.1723475963.A.F2D
wizardsung: 房子空間大,我覺得電視牆可以大點。08/12 23:22
dammbob: 2大2小都這層嗎?書房之後要當小臥室?or小孩要一直同房?08/12 23:24
icexice: 坪數不小但客廳好小氣,這坪數一定要大面寬的電視牆08/12 23:54
mp60707: 廚房中間這麼大 是要搭帳篷嗎?08/12 23:57
mp60707: 客廳完全是小兩房的配置08/12 23:59
l98: 疑問小孩一直同房+108/13 08:33
l98: 獨立廚房搞不好是女主人要求的,不考慮加個冷氣嗎?08/13 08:36
l98: 坪數40坪,卻只設計三房,妳很大的空間是浪費在客餐廳這邊08/13 08:37
l98: 除非你真的打算之後要再換房或小孩再去同棟其他樓層住08/13 08:37
l98: 不然我真的看不出為什麼只給一間小孩房的方案08/13 08:38
paulchen: 室內40坪只能隔成這樣?真的假的 能隔出四房才對吧08/13 09:29
paulchen: 小朋友長大要獨立一個房間吧...08/13 09:30
inconspicous: 小孩上下舖? 長大後就不會住家裡了,所以空間留給08/13 09:32
inconspicous: 大人08/13 09:32
l98: 上大學會不會離家很難說,如果又不同性別最好提早分房較佳08/13 09:35
l98: 又不是小不拉機的兩房要硬擠08/13 09:35
dammbob: 這格局如果兩大一小, 部分微調+客餐廳調整一下 還不錯08/13 11:13
dammbob: 但兩大兩小就真的沒那麼合適08/13 11:14
l98: 書房變臥室說簡單也簡單說難也難,有此打算你最好現在就先想08/13 12:18
l98: 好日後格局要怎規劃 (不過也至少要十年後了) 08/13 12:18
l98: 小孩都沒蹦出來 08/13 12:19
l98: 如果兩大這空機很好呀,但你要思考電視牆部分,太小啦 08/13 12:19
l98: 書房如果做木做櫃體+木做桌子,到時要改就可能要大拆 08/13 12:20
l98: 成屋家具可能會好點08/13 12:20
l98: 10年以上的時間很難說的...搞不好雙胞胎 XD 08/13 12:21
l98: 你先朝 2+1 規劃比較好 08/13 12:24
l98: 你放咖啡雞的地方是臥榻之類的地方嗎? 08/13 12:25
una283: 這配置已經很可以了 08/13 13:40
icexice: 電視牆可以考慮再延伸一點,切齊廁所,會比較符合這麼大 08/13 14:20
icexice: 空間該有的尺度 08/13 14:20
l98: 我的作法是書房不要偷客廳空間 08/13 14:38
l98: 放咖啡雞的地方改變成電視櫃,沙發放進門右側,用隔柵擋 08/13 14:39
l98: 但缺點是書房會比較小但你現在這規劃,書房那空間也不正 08/13 14:40
l98: 最主要還是因為你要三分離客衛 08/13 14:40
l98: 墊高做區隔你要想好打掃問題喔,掃地機器人上不去 08/13 14:45