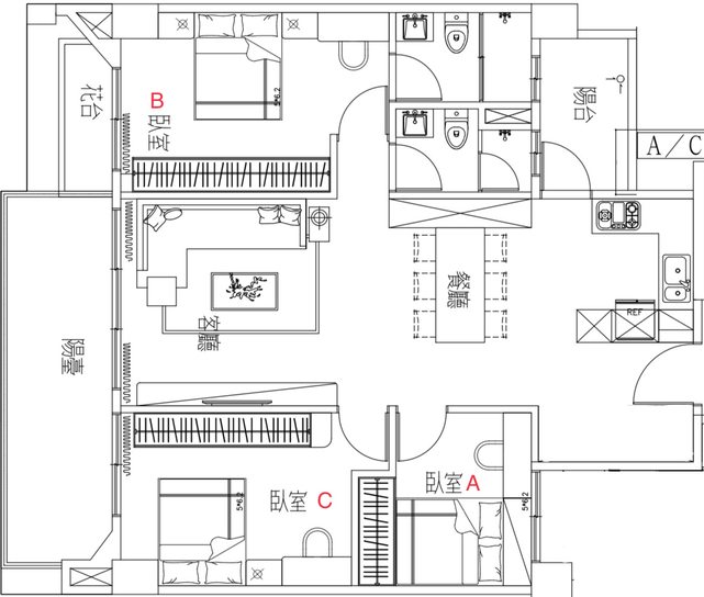
想請教版上前輩 近日已購入新成屋三房兩衛,室內不含陽台約26坪,兩大一小入住,格局如下: https://i.imgur.com/kRbjwm2.jpeg
現在比較困擾的是,我大部分時間是在家工作,主要是線上開會跟用電腦,本來是規劃臥 室A作為書房,但是對外窗是面對樓梯的牆壁,基本上沒什麼採光跟景色,長時間下來會 覺得鬱悶… 所以想改到臥室B面窗(公園樹景)那面設置書桌,臥室A變成多功能室,但是怕主臥可能會 變很小。 想看看大家會怎麼建議比較好 感謝 -- ※ 發信站: 批踢踢實業坊(ptt.org.tw), 來自: 61.231.91.143 (臺灣) ※ 文章網址: https://ptt.org.tw/home-sale/M.1722300342.A.830
l98: 之後有打算再搬家嗎? 小孩房之後用多功能室?07/30 08:51
l98: A 那間很小喔07/30 08:52
albi: 不會再換房了喔,已經是兩房換三房07/30 08:53
l98: 等等,我看錯了07/30 08:54
l98: 你要開會其實我不太建議在臥室開啦07/30 08:54
LansingAltec: A房放單人床很夠用了 這格局坪效真好07/30 08:55
l98: 如果你用筆電的話,去餐桌那邊開會可能都比較好 07/30 08:56
l98: 主臥再擺書桌,會很壅擠,而且應該會要犧牲一些衣櫃空間07/30 08:57
l98: 主臥裡面又卡一柱子,不然那個位置放書桌可以07/30 08:58
l98: 工作桌我是傾向至少寬 120 cm 會比較舒適...那你自己比看看 07/30 09:06
l98: 就知道你臥室要犧牲多少空間了 07/30 09:06
wseedw: 你在意書房景觀當初就不應該買這間啊......主臥放書桌太07/30 09:07
wseedw: 擠了 07/30 09:07
wseedw: 不然AC調整大小,犧牲一點客廳電視牆,給小孩景觀差的房07/30 09:08
wseedw: 間07/30 09:08
over999: c書房 b主臥 不要生小孩 a養寵物07/30 09:24
l98: 兩個人都要電腦桌,拿至少寬要180吧,150擺兩台螢幕就滿了 07/30 10:10
l98: 如果小孩不大又不想打牆變更格局的話,可以臥室C 先用升降桌 07/30 10:13
l98: 之類的成屋家具佈置成書房,等小孩大一點分房再挪去A。不過相 07/30 10:13
l98: 關插座弱電位置要先規劃好 07/30 10:13
l98: 不同時期有不同的心境,搞不好那時妳已經可以接受沒有景觀的 07/30 10:16
l98: 室外窗了? 07/30 10:16
leocat: 書房那間做成和室,家具都用可移動的,未來比較好運用 07/30 10:17
buji: https://i.imgur.com/vXlg1BI.jpeg 07/30 17:26
buji: 採光差的房間隔大做客臥,書房可做半高牆(+玻璃牆) 07/30 17:27