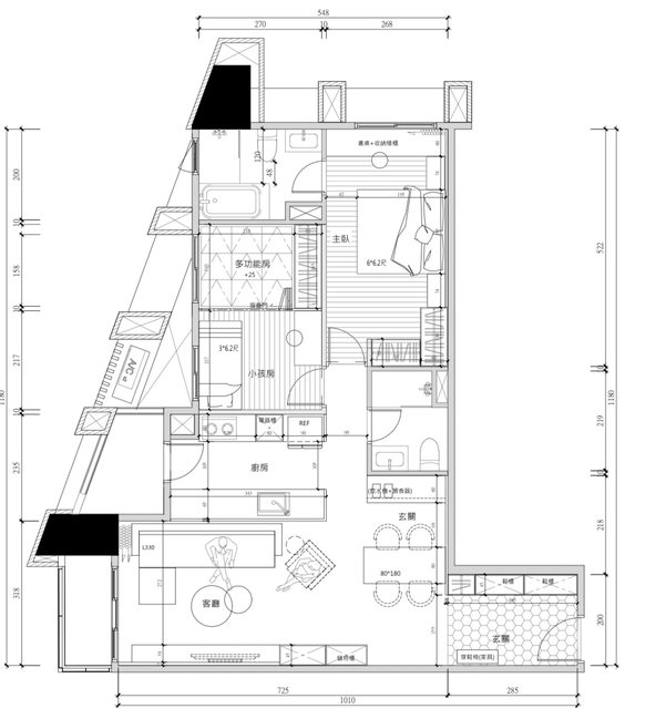
三房客變改兩房 室內約25坪 家居配置圖大概而已,還未明確 https://i.imgur.com/KIyUvML.jpg
缺點如下: 1. 玄關太大 (在想能否增加展示櫃兼屏風) 2. 開放式廚房,電器櫃配置有點擠 (不常開火,但希望火爐對牆面) 3.電視牆無法更動,因為沙發區從南面看出去才有景 4. 主臥長方形,收納設計有點差 希望有些建議,謝謝 ---- Sent from BePTT on my iPhone 12 Pro -- ※ 發信站: 批踢踢實業坊(ptt.org.tw), 來自: 42.77.8.88 (臺灣) ※ 文章網址: https://ptt.org.tw/home-sale/M.1696167840.A.823
asapfrdddd: 森中央? 10/01 21:50
frankyyyy: 小孩房門正對床頭不優,不如乾脆正2房放雙人床了。 10/01 21:59
asapfrdddd: 我有看過這間 主要是公共空間太零碎所以沒考慮 10/01 21:59
asapfrdddd: 不然有一方法 當初有想過 把電視牆取消改一整排收納 10/01 22:01
asapfrdddd: 櫃 廚房改中島 收納問題就解決一半了 10/01 22:01
Avero: 那個包養網人最多XD 10/01 22:01
playerd: 多功能房看起來像和室,直接把空間給小朋友不好嗎 10/01 22:13
scrate: 電器櫃移到瓦斯爐對面,延長流理檯面,煮完菜可放的檯面 10/01 22:36
scrate: 比較多 10/01 22:36
scrate: 小孩房跟多功能室互換 10/01 22:37
dammbob: 其實我不太懂多隔一個只能從小孩房進出的多功能室要幹嘛? 10/01 23:59
ejoz: 我妹上包養網被我發現= = 10/01 23:59
dammbob: 可以直接把內側當睡覺空間 -> 床+衣櫃/置物 10/01 23:59
dammbob: 外側(靠門那邊)擺活動式書桌,必要時可以當多功能用 10/02 00:01
dammbob: 還是其實你想當雜物間放東西用的,所以才收在內側? 10/02 00:03
dammbob: 主臥看起來可以反L型做出更衣間,不過會壓縮房間開闊感 10/02 00:06
dammbob: 這個看個人喜好,現況正L型,轉彎的直角切橫切成類梯形可以 10/02 00:09
FishRoom: 隔壁桌的人竟然在討論包養... 10/02 00:09
dammbob: 增加收納空間,視覺上差異不大,缺點是會增加製作工序($$) 10/02 00:11
dammbob: 另外我個人很愛這種玄關,需要的話可以做二進式隔開 10/02 00:13
yurs: 主臥衣櫃太少了 10/02 00:39
jillada2002: 玄關可以做特殊玻璃之類的橫拉門,平時在室內可以關 10/02 00:59
jillada2002: 起來作為活動屏風 10/02 00:59
KsiR: 樓上是不是被包養 10/02 00:59
jillada2002: 廚房那邊瓦斯爐移到跟水槽同一側,電器櫃旁邊有平台 10/02 01:00
jillada2002: 也好用 10/02 01:00
jillada2002: 然後主臥收納太怪了,室內25坪、主臥配置和餐桌大小 10/02 01:02
jillada2002: 都跟整體空間尺度不成比例 10/02 01:02
jillada2002: 另外主臥馬桶前只有48公分走道,每天洗澡都會進出, 10/02 01:04
peoples: 樓下被包養 10/02 01:04
jillada2002: 卻因為久久使用一次的浴缸佔據走道寬度,好可惜 10/02 01:04
jillada2002: 建議主臥馬桶跟洗手台對調位置,糞管最好是客變就改 10/02 01:05
jillada2002: 好,省得未來麻煩 10/02 01:05
jillada2002: https://i.imgur.com/kJXHrGD.jpg 10/02 01:15
tonight0329: 樓上的建議很棒,受益良多 10/02 07:51
wilmer: 現包養都上檯面了嗎 10/02 07:51