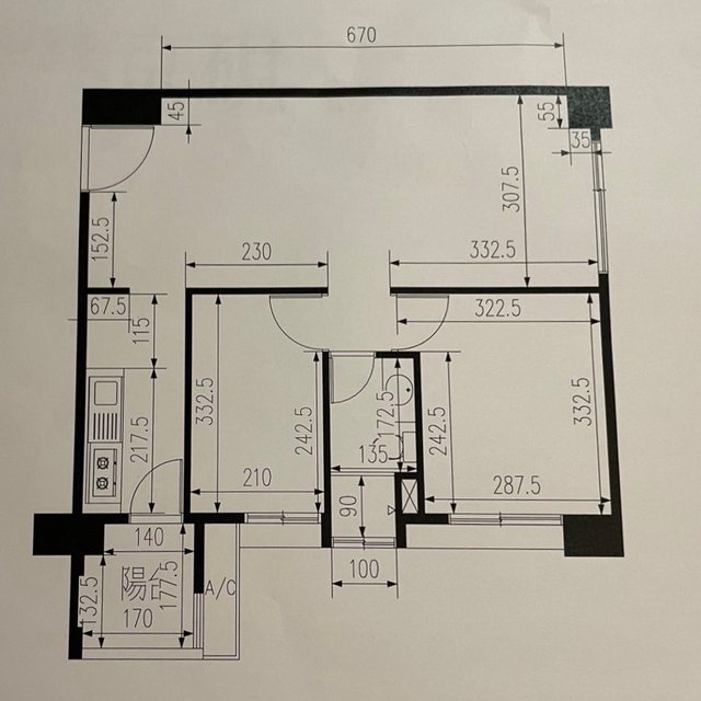
各位前輩好,目前有考慮一間兩房預售屋 想請大家幫忙看格局是否還可以 看到缺點有穿堂煞、主臥壓樑、單衛浴 但這些不是很在意 預計只有兩個人住 權狀坪數27.99坪 主建物17.28坪 陽台1.19坪 戶型是A6 https://i.imgur.com/31O7SNC.jpg
https://i.imgur.com/2DRPo4P.jpg
https://i.imgur.com/1uMZe9s.jpg
謝謝大家 -- ※ 發信站: 批踢踢實業坊(ptt.org.tw), 來自: 39.10.18.35 (臺灣) ※ 文章網址: https://ptt.org.tw/home-sale/M.1692500032.A.AFC
uevol123: 算不錯了 08/20 10:58
angele: 房間朝南客廳朝東,棟距20米,明廳明房衛浴開窗。就廚房 08/20 10:59
angele: 放冰箱的位置剩下的空間也放不下電器櫃,建商為什麼不讓檯 08/20 10:59
angele: 面大一點,留個空隙不知做什麼? 08/20 10:59
k85564: 現在兩房雙面採光就80分了 08/20 10:59
badlip: 阿姨!我不想努力了(求包養) 08/20 10:59
momomom: 很不錯啊 08/20 10:59
k85564: 這間很好了 08/20 10:59
guanole: 可以當垃圾桶空間啊 看怎麼利用吧 08/20 11:02
momomom: 冰箱往右推 自己再加一個小工作台就好 08/20 11:04
guanole: 主臥有壁刀 不過主臥是睡覺的地方 窗簾拉起來應該還好 08/20 11:04
piggyoil: 有沒有富二代要包養 08/20 11:04
std94282: 冰箱旁是想說可以放側拉的零食櫃或增加拉門 08/20 11:11
ethel617: 中規中矩沒什麼問題 08/20 11:11
peheart: 以兩房的格局來說很棒了 08/20 11:17
themlb09: 冰箱旁肯定要放垃圾廚餘筒,放其他地方都不適合 08/20 11:23
inconspicous: 那只是示意圖,你冰箱胖當然可以放電器櫃,只是鞋櫃 08/20 11:50
TwixBar: 身邊有朋友被包養 08/20 11:50
inconspicous: 空間縮小而已 08/20 11:50
inconspicous: 難道你以為他會做好櫃子給你 08/20 11:51
inconspicous: 把那個牆客邊掉就行 08/20 11:53
achiyeng: 格局很讚了 08/20 12:06
aa00788: 完美 這間我要了 08/20 12:17
boggicer: 亞洲最大包養平台上線了 08/20 12:17
jaricho: 很好 那個建案透漏一下 08/20 12:19
iamiam: 樓高若夠高,房間開窗朝南,夏天很舒服 08/20 12:33
iamiam: 格局很不錯了!該留的空間都有留!2個人吃飯的話買個小餐 08/20 12:36
iamiam: 桌就好! 08/20 12:36
iamiam: 那個牆做個透明拉門還可以擋油煙味 08/20 12:37
Chiason: 包養SD = SugarDaddy? 08/20 12:37
straggler7: 中壢 08/20 12:38
daydayday: 大X泊? 08/20 13:11
idmaker: 可以買了 你說的那些缺點都不是問題 08/20 13:24
sirloin: 不是大亮泊吧 08/20 14:05
AHsuanHsuan: 豐郡京硯 08/20 14:26
Markell: 這個包養網正妹好多 是真的嗎 08/20 14:26
f771208: 高雄的陽臺超大一塊 08/20 14:40
AHsuanHsuan: 冰箱65公分可搞定(400-500公升) 剩下55公分做電器櫃 08/20 16:52
AHsuanHsuan: 也還夠用 還可以塞45公分的洗碗機 08/20 16:52
AHsuanHsuan: *50公分 08/20 16:52
shi21: 大亮泊的格局都很奇葩 不可能這麼好啦 08/20 19:49
fuoya: 真的有這麼多人在找包養 08/20 19:49
std94282: 謝謝各位的建議! 08/20 22:36
yuffie: 這格局正常多了。之前一堆暗廳浴廁沒窗也貼上來問…(無言 08/21 00:08
kgkg0057: 2房 這ok的漂 .. 08/21 04:00