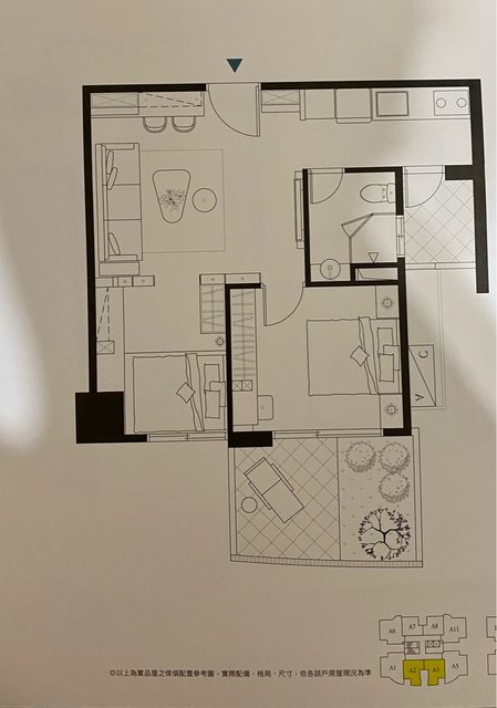
各位大大好,小弟新手首購族,目前有看中一個兩房的預售屋,目前打算自己一個人住, 想請問大家格局如何?個人是覺得次臥和客廳的格局不好隔 權狀約27.86,公設比35.5 https://i.imgur.com/4kbAB8S.jpg
-- ※ 發信站: 批踢踢實業坊(ptt.org.tw), 來自: 223.139.31.74 (臺灣) ※ 文章網址: https://ptt.org.tw/home-sale/M.1691768047.A.276
joegod: 高雄厝? 08/11 23:35
lovewhite: 工作陽台超小 08/11 23:40
lovewhite: 只有自己住的話乾脆別用次臥了 打掉牆做大主臥 之後要 08/11 23:41
lovewhite: 賣重新做一道牆也不貴 08/11 23:41
lovewhite: 我也是自己住 就滿後悔當初沒乾脆把牆打掉 次臥現在除 08/11 23:42
UNIQC: 問卦:有包養SD的卦嗎 08/11 23:42
lovewhite: 了拿來當儲物間之外完全沒其他用途 08/11 23:42
bustinjieber: 陽台也太大了== 08/11 23:58
bustinjieber: 一個人住的話,次卧可以半牆或不隔 08/11 23:59
inconspicous: 覺得房間那個陽台有點太大,次臥你裝潢一下當書房是 08/12 00:28
inconspicous: 不錯的 08/12 00:28
dewaro: 隔壁桌好像是包養SD在見面XD 08/12 00:28
adeson: 大陽台在臥室外面,這樣的設計真的很尷尬也不好用,看過 08/12 00:34
adeson: 不少建案都這樣,這是最新流行還是純粹建商的室內設計部 08/12 00:34
adeson: 門功力不夠? 08/12 00:34
chienyu1: 電視跟沙發距離好遠,電視又沒辦法買太大 08/12 00:36
lescholar: 一個人住就不用隔了 客廳窗邊擺書桌之類的 08/12 00:42
Elfego: aSugarDating = 包養SD? 08/12 00:42
kech9111: 下一間 08/12 01:05
FlynnZhang: 採光超爛 08/12 01:33
mr19951023: 這間住起來會像套房感 不建議買 08/12 01:39
iceonly: 爛到爆炸,權狀27沒必要選這種1+1格局吧,這種格局是小坪 08/12 02:18
iceonly: 數撐房間數用的。為了避免暗廳這種致命缺陷你的次臥利用 08/12 02:18
Nicodim: 未看先猜這包養網 08/12 02:18
iceonly: 會被限制,明明是兩房的大小搞成跟1+1一樣 08/12 02:18
Sugimoto5566: 可以了 08/12 06:18
opop1133: 鳥籠 08/12 06:46
yeng1217: 看就高雄厝 08/12 07:24
cka: 暗廳… 08/12 07:32
Foning: 有人知道包養SD是什麼嗎 08/12 07:32
ILOVEluee: 笑了 花一堆錢買景觀陽台 結果實用的工作陽台... 08/12 07:40
iamiam: 買陽台嗎? 08/12 07:53
benson502: 畫的好爛 08/12 08:05
marx0126: 居然沒人嫌暗廳? 08/12 08:22
min510262: 強烈建議不要做什麼半牆,要碼打通要碼維持兩間,半牆 08/12 08:59
AKNY: 一定又是這包養網 08/12 08:59
min510262: 真的是中看不中用的設計 08/12 08:59
samadhi: 那是露台?低樓層? 08/12 09:25
una283: 滿詭異的,一進門自己被自己臥室牆切到 08/12 10:24
themlb09: 電視牆超遠,但又放不了大電視 08/12 10:54
xd4664: 格局好爛 換下一家 08/12 11:05
mysister: 包養平台不意外 08/12 11:05
hongdagg: 這格局無話可說 08/12 14:51
ethel617: 客廳應該是在次臥的位置,原來客廳的空間就是很好規劃 08/12 16:09
ethel617: 的公共空間,保留一房就好 08/12 16:09
dxdy: 好鳥 08/12 18:08