當初在板上還有稍微問了一下版上各位意見 沒想到那時候疫情前的價格其實買哪裡都很輕鬆 過程中其實一波三折,從一開始的缺工, 到去年建商客變給我弄錯,延遲三個月交屋 還有這三年裝潢工資的漲幅,過程其實蠻心煩的 尤其是跟設計師溝通的部分,真的要找聊得來又有耐心的,不然真的會覺得花錢受氣, 我這篇單純分享而已沒有要業配,所以設計師是哪間就不回覆 房子室內31坪,扣掉前後陽台大概27左右 因為交屋後我唯一可以先佈置的就是前陽台 所以這邊自己慢慢弄, 大概花費不到兩萬(不含盆栽) 覺得下班有個空間喝咖啡看景很舒服(17f) https://i.imgur.com/uIZr3mq.jpg
https://i.imgur.com/XEVTYny.jpg
https://i.imgur.com/hQPhXob.jpg
然後一開始客廳後的書房本來想說做玻璃半牆增加公共空間的通透感,但後來考慮到隱私 問題以及書房內需要保持的很整齊,就只有客變大小了 https://i.imgur.com/H0ZD7iC.jpg
因為公共空間不算大,平常只有兩大一小的成員 想要買180的桌子也改成160的四人桌 這邊有做一個零食櫃,去全聯財富自由回家擺滿很舒服 https://i.imgur.com/yqWy1Mf.jpg
https://i.imgur.com/zMFzNQn.jpg
https://i.imgur.com/TxwGBBv.jpg
書房以及小孩房裝潢只有做天花板以及一點點櫃子,基本上留白自己來居多,書房怕無聊 自己弄了一點氣氛燈,這邊桌子是180的之後有空再裝第二個螢幕 https://i.imgur.com/FPh2u6b.jpg
https://i.imgur.com/05vNH61.jpg
主臥的部分原本空間還算大,但是為了美觀後面 又隔了開放式的更衣空間順便放貓砂盆 https://i.imgur.com/mg39ZmT.jpg
https://i.imgur.com/eMuXX8X.jpg
https://i.imgur.com/UP188dv.jpg
廚房的話只有沿用建商廚具然後稍微延伸 做了一個可以拖拉的電器櫃 延伸到公共空間是掃地機器人的家 比較特別的地方是想要藏垃圾桶以及冰箱 所以有規劃一個小空間出來 讓我們平常在客廳是看不太到的 https://i.imgur.com/7gPA9Ze.jpg
https://i.imgur.com/KkTvz8z.jpg
衛浴原本有三間,太多了所以打通其中兩間 因為太太本來就喜歡泡澡可以順便看夜景 https://i.imgur.com/y670fZl.jpg
https://i.imgur.com/h2AhuBS.jpg
最後是幾張攝影師的照片 https://i.imgur.com/Rheiv4f.jpg
https://i.imgur.com/amGY0Wm.jpg
https://i.imgur.com/l3Ztx1f.jpg
https://i.imgur.com/4OFPbHA.jpg
https://i.imgur.com/LJKH9nU.jpg
其實我覺得最重要的是自己喜歡什麼樣的色調, 質感以及生活習慣都要提出來,過程中雖然很多 溝通上的拉扯,但最後住進去的終究是自己,有些地方真的需要有自己的想法,成品出來 才會滿意 稍微回覆一下大家的問題 1.裝潢價格抓在150左右, 但不包含所有家具家電、吊燈、窗簾 因為自己這些款式都已經有想法 所以就自己來比較便宜 但加一加的確是超過兩百了 不過這邊也是能省則省 小孩房衣櫃沿用,雙人加大床組沿用, 洗烘托沿用、電視沿用 所以家電只買了四台p牌冷氣、一台p牌冰箱、 瞬熱飲水機、掃拖機器人, 比較奢侈的只有兩台B&O的音響 其他都是原本就先準備好的小家電 2.陽台的部分因為我本來就有種植栽 所以維護不是什麼問題,買好一點的塑木地板 質感不會太差,清潔就澆水順便沖一沖很簡單 附上室內圖以及貓貓照 https://i.imgur.com/KIOeAVF.jpg
https://i.imgur.com/GxYZKls.jpg
放貓砂盆的更衣室有做隱形門 所以是自己獨立的空間,而且裡面就是主浴 平常窗戶都是開著的,加起來三面窗戶通風很好 貓咪可以活動的空間也很大 然後其實我們東西沒有很多,收納其實都還有剩 平常就是可以一直維持照片上的樣子 我們這個案子五個戶別,兩戶是三房三衛浴的 看住戶群組改成兩衛的人不多,所以這看個人需求吧,客變的時候大部分的隔間都打完了 ,所以裝潢拆除的部分沒有到很多 還有拜託不要再來信詢問設計師,當初我們是搜集很多想法一直修改才有現在的設計,所 以我認為找負責任的設計師,跟業主自己本身的意見才是最重要的 順便回覆一下陽台第一張照片都是ikea不過白色花架絕版了,只能蝦皮找類似款,頂天立 地是momo買的,風大的時候小盆栽需要放地上,大的沒影響,家裡面北風本來就蠻大的了 ,平常沒什麼問題 -- ※ 發信站: 批踢踢實業坊(ptt.org.tw), 來自: 125.224.136.20 (臺灣) ※ 文章網址: https://ptt.org.tw/home-sale/M.1688303202.A.EE1
YAYA6655: 房子很小,但感覺還舒適。恭喜07/02 21:12
sunshowerain: 打從心底羨慕 恭喜07/02 21:19
Qpp: 樓上覺得室內31坪的房子小?07/02 21:20
kiii210: 室內31小喔,一樓住多大啊?07/02 21:21
cczx123123: 恭喜恭喜 想知道花多少啊..07/02 21:26
grado0802: 包養平台不意外07/02 21:26
pighong: 連泡澡都可以看景,光物件就95分了,恭喜07/02 21:29
ArgoVesta: 這樣還算小 一樓家好大07/02 21:33
psow123: 推很漂亮07/02 21:33
jackeighteen: 推分享,很美!07/02 21:37
abdd123413: 好美喔 真讚07/02 21:38
smilejin: 覺得包養網EY嗎07/02 21:38
jeseph79: 很美07/02 21:39
mepe1018: 恭喜!看起來很美07/02 21:40
kk1234: 很不錯 謝謝分享07/02 21:43
roamer1005: View很好07/02 21:45
kagaya: 好棒哦 夢想中的浴缸07/02 21:45
qusekii: 包養網站葉配啦07/02 21:45
androider: 房間比較小的關係吧07/02 21:46
SIMPLEPLAN: 這個沒200我不信07/02 21:49
lyonnaise: 讚 恭喜!07/02 21:50
payneblue: 拍得很像樣品屋07/02 21:57
LGham: 恭喜 超美的!07/02 21:57
Y949731: 記者收了包養網多少啦07/02 21:57
Vince4117: 一樓好大喔 誤 07/02 21:58
yuys: 陽台view不錯 恭喜 求貓照(?) 07/02 22:00
plcc122: 恭喜 07/02 22:02
pin1205: 好美喔 放手沖壺的空間真棒 07/02 22:03
beforehand: 很美 恭喜 07/02 22:03
T730733: 包養真亂 07/02 22:03
isco: 室內31,建坪55吧,當時不含車位要價約16xx萬吧 07/02 22:06
Boren0704: 不要對陽台有太多的幻想,東西一大堆很難顧 07/02 22:07
Boren0704: 髒了之後也不會想踏出去 07/02 22:07
RachelMcAdam: 氣炸鍋到底能不能放室內啊? 07/02 22:08
picturesque: 樓上哪招 自己喜歡的空間自然會花心力顧好 07/02 22:09
FireStation: 演藝圈一堆包養好嗎 07/02 22:09
kumian: 這門跟我家好像 是新業的嗎? 07/02 22:13
godofsex: 好看07/02 22:20
MiniArse: 室內27竟然可以三間衛浴 有點屌~~~07/02 22:27
mepe1018: 大門和陽台框像是新業建設的07/02 22:30
lee1023: 不錯耶推07/02 22:33
Thobel: 政治圈一堆包養好嗎07/02 22:33
what1026: 漂亮!07/02 22:34
u4j03: 請問陽台的頂天立地的架子哪裡買的呀?07/02 22:35
yanwe: 推07/02 22:35
u4fu3: 很美!想問整體裝潢費用!07/02 22:43
erowii: 想問一下陽台如果遇到風大的時候小盆栽要怎麼固定07/02 22:46
Reji: 有錢人一堆包養好嗎07/02 22:46
resy: 推07/02 22:54
ray7711: 這應該四房吧 有三間廁所的建案新的應該不多07/02 23:00
chiayigo: 恭喜,有美感又舒適的空間 07/02 23:02
haopig: 有蠻多實坪30左右的規劃雙主臥啊,真是大驚小怪 07/02 23:03
danielyoung: 客廳電視旁的窗簾盒木工曲線好美 但是價錢應該不簡單 07/02 23:09
Hathael: 學生妹被包養多嗎 07/02 23:09
danielyoung: XD 07/02 23:09
cobrabaton: 1樓應該是共享萬坪公園吧 07/02 23:12
topaaron12: 樓上直接突破盲腸 07/02 23:18
hsin1207: 做了大量的曲面、圓弧,連天花板都做了,這費用應該不會 07/02 23:24
hsin1207: 太便宜 07/02 23:25
yovroc: 有錢人為啥都想包養 07/02 23:25
hsin1207: 不過整體色調配得很好,讓人看了很舒服 07/02 23:28
q156446: view好像就是看一堆舊房子 天空反而比較漂亮 07/02 23:31
target1234: 很漂亮 07/02 23:39
kaijai10439: 住慣鄉下透天的覺得小 但以電梯大樓來說已經算大了07/02 23:39
kaijai10439: 會覺得小可能是第四張圖縱深太深所以感覺面寬窄07/02 23:39
helgalie: 有錢人為啥都想包養07/02 23:39
shi21: 室內31算很大了吧07/02 23:42
master32: 三衛浴耶!這算常見嗎???07/02 23:44
ssaic2006: 原來這算大嗎?! 感覺很溫馨~~07/02 23:52
Adam6613: 恭喜07/02 23:55
dreamfree: 推07/02 23:58
OREOMZA: 亞洲最大包養網上線啦07/02 23:58
cookeeshop: 喜的推一個!跟我家的吊燈一樣07/03 00:15
aq2272353712: 感覺裝潢滿貴,支持陽台不要搞太複雜07/03 00:19
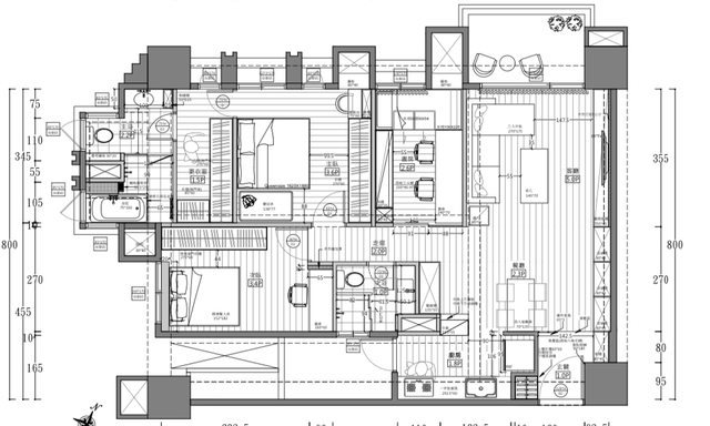
m2724669: 請問有平面圖可以參考空間分配嗎?07/03 00:20
StoneJean: 好美 感謝分享07/03 00:25
Mayfair0597: 恭喜!貓砂盆放主臥不會有貓味或變沙漠嗎XD 07/03 00:48
punjab: 我哥上包養網被我抓包.. 07/03 00:48
luckysmallsu: 室內31坪還算小唷 07/03 00:54
shat469: 超讚 感謝分享 07/03 00:56
ggwp0808: 讚 07/03 01:00
starbucks16: 恭喜 07/03 01:12
HIDExYOSHIKI: 光窗外那個view就無敵了! 07/03 01:18
sashare: 有人包養過洋鬼子嗎 07/03 01:18
amberfline: 好棒! 07/03 01:34
casio0406: 買大樓就是花在裝潢 07/03 01:37
casio0406: 透天都花在實體設備XD 07/03 01:37
syu72: 推推,我也是喜歡書房要隱密 07/03 01:39
kopolo: 比較中意浴室 07/03 01:49
sijiex: 有錢人為啥都想包養 07/03 01:49
musicaledio: 讚 我室內也31,可以參考你的改法!! 07/03 03:05
musicaledio: 室內31然後三衛浴真的很特別 07/03 03:05
kagaya: 阿就本來四房才會有三衛浴吧 買四房鳥籠改成只二個人住就 07/03 03:44
kagaya: 超寬裕了 07/03 03:44
polypress: 一樓家是多大XDD 07/03 05:10
VLADINA: 有人被洋鬼子包養過嗎 07/03 05:10
AndrewWiggs: 沙發漂亮,想了解資訊 07/03 06:36
pletykimo: 好美!!恭喜~ 07/03 06:46
DeathStarDS1: 有景真好 07/03 06:46
qqq7840: 看到天花板跟電視牆就覺得好貴07/03 07:21
qqq7840: 靠腰按到紅色推回來 07/03 07:21
odemagus: 到底要多有錢才會想包養 07/03 07:21
mitic1029: 不含家具就150萬,不過整體看下來很有質感 07/03 07:22
daisukiryo: 好漂亮啊! 07/03 07:30
karl7238: 讚哦!看起來很舒適07/03 07:42
leodog: 推分享~很美~ 07/03 08:08
haopig: 說只有四房才有三衛浴的看的房子也太少,笑死人07/03 08:22
yes500: 閨蜜上包養網還推薦我...07/03 08:22
s929303: 房子很漂亮,恭喜住在理想房子內 07/03 08:27
AoShenFengYu: 客廳的窗簾槽好好看喔! 07/03 08:36
PTTDURANT: 有貓給推 07/03 09:12
kagaya: 笑死的不會去找個二三房三衛浴來看看有沒有人要買哦 07/03 09:14
asd31415926: 美美see 07/03 09:26
alexantiy: 包養? 07/03 09:26
newuyQ: 請問第一張放盆栽的白色架子是叫什麼呢?好像是IKEA的? 07/03 09:29
newuyQ: 謝謝您 07/03 09:29
chiao218: 我目前買的新屋室內坪數也差不多是這樣,也是3+1的空間 07/03 09:29
chiao218: ,一直在考慮書房要做開放還是半開放還是隔起來,怕隔起 07/03 09:29
chiao218: 來客廳太小 07/03 09:29
sowrey: 現在包養網都這麼直接嗎 07/03 09:29
chiao218: 陽台真的很讚 07/03 09:30
mepe1018: 別吵啦~我們社區有三房三衛浴的,賣光光~有些家庭就真 07/03 09:30
mepe1018: 有需要有衛浴套房啊! 07/03 09:30
mepe1018: 你不需要,不代表別人不需要 07/03 09:32
NaOH268: 有夠美的,恭喜大大~ 07/03 10:06
cw758: 歐美包養真的很平常嗎? 07/03 10:06
ppc: 台中就是讚07/03 10:07
miuki001: 很美、很舒適的感覺 07/03 10:10
fangjoe24: 創造一個舒適的生活環境真的很棒 07/03 10:10
chpses: 推房子跟1zpresso XD 07/03 10:24
KobeEFF0: 恭喜07/03 10:31
ludi: 男友上包養網 該放生嗎07/03 10:31
mp60707: 被套不喜歡 07/03 10:41
haopig: 就真的很多建案會有三房雙主臥三衛浴的規劃啊,只生一個07/03 10:42
haopig: 三代同堂的好方案,自己見識少還硬要掰,笑死人 07/03 10:42
chiefchief: 裝潢得很有想法 很漂亮 07/03 10:43
sam860217: 書房完美 07/03 10:46
peernut: 是這個包養平台嗎 07/03 10:46
asd31415926: 認真看這樣只花150萬…真的算便宜 07/03 10:54
mrclotfamily: 恭喜看起來很棒 07/03 10:55
faye8626: 很棒 07/03 11:12
kagaya: 本來要三代同堂的拿來二人住也是很寬裕吧 07/03 11:22
kagaya: 總之坪數買大然後少人住就會很容易規劃囉。 07/03 11:23
xikimi: 交男友跟包養有什麼差別 07/03 11:23
IamJoey: 很舒適耶 恭喜完成。一家3口很ok. 2大2小要舒適只能買在 07/03 11:38
IamJoey: 大一點 07/03 11:38
mopackm53637: 你做那麼多只花150算超便宜 07/03 12:29
mopackm53637: 感覺有打牆拆除欸,現在清運費超高 07/03 12:30
solidmiss: 我真的好奇陽台放那些風大颱風怎麼辦 不然我也想弄 07/03 12:31
Avero: 包養網到底在紅什麼? 07/03 12:31
Kayusumi: 陽台鋪塑木久了下面很可怕 07/03 12:35
CapPigeon: 好美 07/03 13:16
Reg1001: 150 很划算!很美!! 07/03 13:24
Harlequin727: 陽台是玻璃的話就完美了 07/03 13:31
c9047562: 羨慕有浴缸~ 有做浴缸泥作花不少吧 150萬好佛喔 07/03 13:37
ejoz: 有人被包養 07/03 13:37
lyxiang: 一樓的感覺很大 07/03 13:43
brogy: 原po的餐桌跟我新家同款 是不是也是文心路某傢俱行的?哈 07/03 13:52
brogy: 哈 07/03 13:52
suPerFlyK: 便宜欸 07/03 14:00
newqazwsx: 太幸福了 07/03 14:29
FishRoom: 求包養...管飽就好XD 07/03 14:29
haopig: 浴缸應該是沿用建商付的啦,這個預算廚房浴室一定都是大 07/03 15:05
haopig: 部分沿用原本的 07/03 15:05
thurs1223: 浴缸是我自己買的喔 泥作也是我自己處理 07/03 15:36
yuuga: 敢在房版分享裝潢文的果然有兩把刷子! 07/03 15:43
cinqfive: 窗簾配色好看! 07/03 15:43
KsiR: 阿姨!我不想努力了(求包養) 07/03 15:43
thurs1223: 更正一下 浴缸和龍頭五金自己買有牌子的然後給設計師處 07/03 15:47
thurs1223: 理 07/03 15:47
nctufish: 冰箱散熱空間似乎不足…… 07/03 16:08
lovehank1210: 美! 07/03 16:16
curlymonkey: 好美 07/03 16:41
peoples: 有沒有富二代要包養 07/03 16:41
MiLu307: 正點 07/03 17:01
gigi0316: 好讚 好羨慕 設計的超棒 主要是很多都自己來真的蠻厲害 07/03 17:03
gigi0316: 的 07/03 17:03