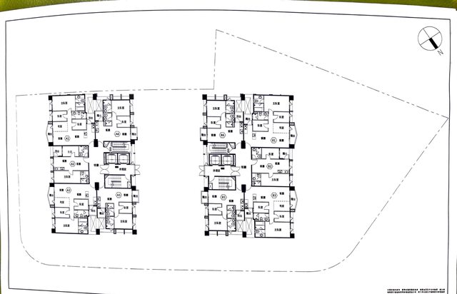
這是尚未開賣的預售屋 有三房兩廳兩衛 還有二房二廳二衛 未來住兩人,本來都可3/2/2的房型, 發現有2/2/2的雙衛格局, 總價較低,有兩衛不需要搶廁所,所以也可以考慮 建案預計兩週後開賣 想請問要選哪個房型比較好? 格局有何不妥的地方? 謝謝 3房是37.42坪 2房是24.98坪 公設35% https://i.imgur.com/dkknh7T.jpg
https://i.imgur.com/MIa6R0g.jpg
https://i.imgur.com/QVmW3iU.jpg
-- ※ 發信站: 批踢踢實業坊(ptt.org.tw), 來自: 61.65.53.184 (臺灣) ※ 文章網址: https://ptt.org.tw/home-sale/M.1704805295.A.CE2
siddp987: 25坪扣掉公設和陽台後,市內實際坪數不大,再加上又有 01/09 22:24
siddp987: 兩衛,比較擔心兩間房間都是小房 01/09 22:24
tayatiffany: 這個三房真的非常非常小 建議你去看一下同樣尺度的 01/09 22:32
tayatiffany: 房子 先確定自己能接受 01/09 22:32
peheart: 29坪都能隔三房了,37很夠了啦 01/09 22:43
Cinedt: 現包養都上檯面了嗎 01/09 22:43
bustinjieber: 現在新建案主加陽24的三房以上非常小? 01/09 23:21
bustinjieber: 確定有在看房子? 01/09 23:21
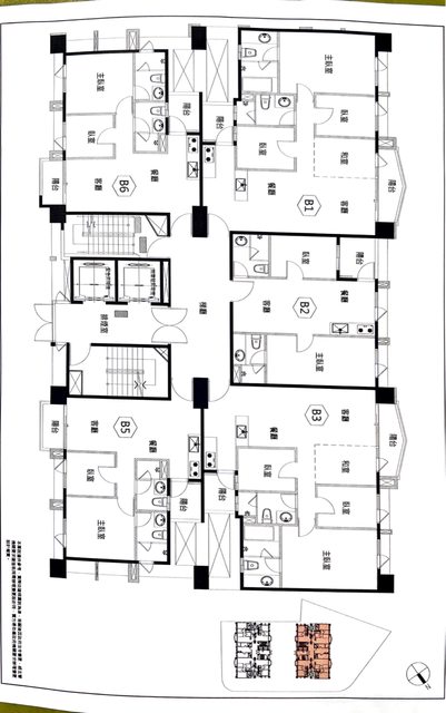
bustinjieber: 反正除了B2最差,其他的房型都不錯了。 01/09 23:23
lindsey1117: 林口立軒嗎 去年交屋離離落落的磁磚修補了沒 最好打 01/09 23:29
lindsey1117: 聽一下 01/09 23:29
Drither: 在包養網遇到朋友= = 01/09 23:29
mitic1029: 都說預售了,哪來交屋環節 01/10 00:21
meisgod: B2川字形 最爛了 01/10 00:25
skypiper: 預算夠就買大的 01/10 02:46
wentasu: B5或A2 01/10 06:21
wentasu: 要看外景的話,選A2,覺得看社區鄰棟沒關係的話選B5。 01/10 06:23
Notker: 問卦:有包養SD的卦嗎 01/10 06:23
peheart: 樓上沒看過更爛的川字,這算及格了 01/10 08:04
mimoc: 錢夠的話選A1,錢不夠選B6,再不夠選A2 01/10 11:10