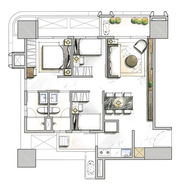
※ 引述《u104001032》之銘言 : 三房格局想請教版上大大們 : 1. 格局之優缺 : 2. 未來客變建議方向(目前想法是把客廳書房打通) : 權狀33.77坪 : 主19.53坪 : 附2.56坪 : 感激不盡! : https://i.imgur.com/SE0sliF.jpg
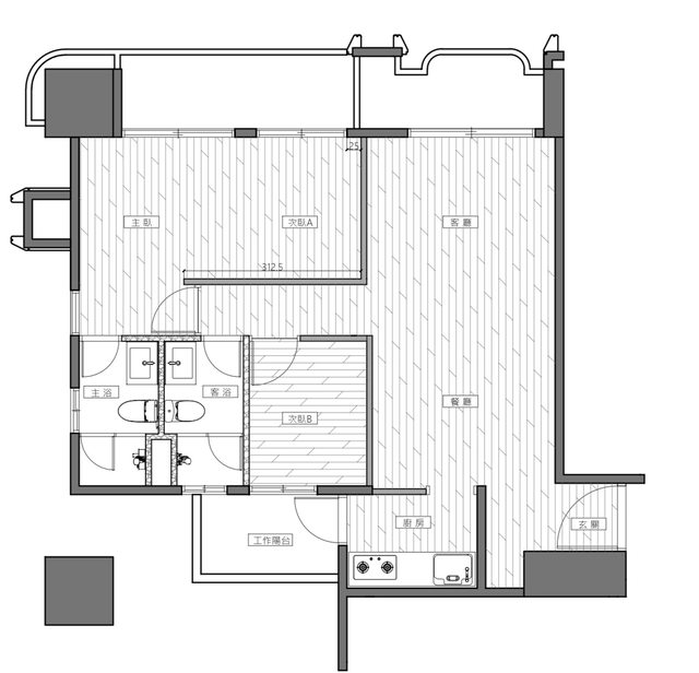
抱歉回覆自己的文>< 時隔半年,目前收到客變通知了,若原2+1房客變成2房格局(如下圖),請問前輩們有什麼建 議或此格局會有什麼問題嗎? 目前家庭成員2大,到時交屋可能會增加1小 謝謝大家! https://i.imgur.com/BZkcOqY.jpg
-- ※ 發信站: 批踢踢實業坊(ptt.org.tw), 來自: 223.141.243.139 (臺灣) ※ 文章網址: https://ptt.org.tw/home-sale/M.1704632829.A.755
jc10755: 臥室那麼大間是要做更衣室? 01/07 21:12
e22346845: 看起來直接把次臥當更衣室就好 01/07 21:26
e22346845: 不怎麼需要改吧 01/07 21:26
icexice: 還不如要打掉的那間改半開放書房,主臥那麼大有特別需求 01/07 21:41
icexice: 嗎? 01/07 21:41
boggicer: 包養網到底在紅什麼? 01/07 21:41
u104001032: 因為原來的主臥可能怕嬰兒床放不下才想說這樣改的 01/07 21:43
TheDonDon: 加大半間即可 那個走道再彎進去很差 01/07 21:56
cc4: 覺得原來三房格局比較好 也難說之後不會有二寶 01/07 23:02
icexice: 嬰兒床是階段性需求,但房間打掉要改回來的代價很大耶 01/07 23:07
iwjwlmsc0707: 覺得原本比較好 不需要改 01/07 23:18
Chiason: 有人被包養 01/07 23:18
TiggerLin: 話說 原來的格局已經是今年夢幻基本款了 01/08 01:43
TiggerLin: *近年 01/08 01:43
fitenessboyz: 個人認為更衣室是沒必要的設計,佔空間 01/08 09:36
kevin190: 把原本三房格局的次臥A跟客廳間的隔間取消,可增加客廳 01/08 10:09
kevin190: 採光,把餐桌位置移到次臥A當多功能桌,既有的餐桌位置 01/08 10:09
Markell: 求包養...管飽就好XD 01/08 10:09
kevin190: 未來能放小朋友的玩具或嬰兒車,也不要改冰箱位置 01/08 10:09