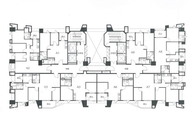
最近有意上車預售屋,想請板上大大看看這個三房格局 A3戶 有沒有問題,感謝 主建物 22.78坪 陽台 3.2坪 https://i.imgur.com/RoziSif.jpg
https://i.imgur.com/LljHtym.jpg
-- ※ 發信站: 批踢踢實業坊(ptt.org.tw), 來自: 114.34.141.205 (臺灣) ※ 文章網址: https://ptt.org.tw/home-sale/M.1704083088.A.6C8
Hotsheep: 廚房很小玄關超大 卡著濕區不太好調整 01/01 12:48
kobe7785075: 廚房跟餐桌隔開 動線不好 客衛沒窗 還有左下房尻尻 01/01 12:52
kobe7785075: 會被在陽台家人看到 01/01 12:52
ck13579: 客廳房敲掉電視牆往前推 後面可以格一間小儲藏室 廚房跟 01/01 13:00
ck13579: 餐桌位置看你能不能接受 01/01 13:00
T730733: 真的有這麼多人在找包養 01/01 13:00
wseedw: 玄關比例超怪的 01/01 13:55
cjo76223: 硬要挑我會選A2 01/01 14:06
cc4: 端菜要很小心XD 01/01 15:35
bustinjieber: 還可以啊,等於把書房獨立出來, 01/01 17:52
bustinjieber: 讓整個空間是方正的,要做更衣室 01/01 17:52
FireStation: 有人可以分析一下包養平台的差異嗎 01/01 17:52
bustinjieber: 或是重新隔間,讓小房間變大都可以 01/01 17:52
Goog1e: 分類 01/01 18:15
NSYSUEE: 陽台就3坪大了,這幾乎是一個雙人客臥大小 01/01 19:45