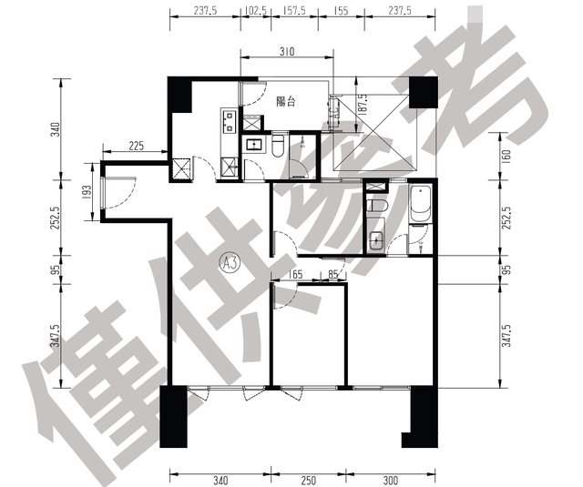
原始尺寸及格局如圖1 https://i.imgur.com/gP0BG6Q.jpg
我自己的腦洞改法如圖2 https://i.imgur.com/jjptVtG.jpg
1. 紅色長方形是次臥想做櫃子的位置, 所以想改變門的位置到手繪的地方, 不知道這樣改的可行性如何, 有沒有可能會造成問題的地方? 2. 廚房預設冰箱的位子, 從平面圖量測深度約60~65公分, 扣除冰箱需保留的後方距離之後, 感覺冰箱會很小一台, 想請教各位前輩們, 有沒有什麼適合擺放的位置? 或者格局怎麼變動可以有位子放冰箱? 希望能放的下700公升以上的冰箱, 深度大約需要85~90公分? 因為目前還沒有一個完善的想法, 所以圖上也沒畫 這是我人生中第一間預售屋, 希望能事先規劃好, 以免真的入住遇到問題, 到時候要解決可能不只多花錢, 還要花更多時間, 所以想尋求版上各位前輩們的意見, 看能不能解決目前遇到的難題, 如果有什麼我沒注意到的地方, 也拜託請前輩們不吝賜教, 先在此謝謝大家了 ----- Sent from JPTT on my iPhone -- ※ 發信站: 批踢踢實業坊(ptt.org.tw), 來自: 114.137.59.201 (臺灣) ※ 文章網址: https://ptt.org.tw/home-sale/M.1703079770.A.937
icexice: 冰箱凸出來其實視覺及使用上沒什麼差別,注意高度夠散熱 12/20 21:45
icexice: 就好 12/20 21:45
chingyiing: 問題是冰箱凸出來會影響廚房出入口的大小… 12/20 21:51
utwosf: 廚房門變更成推拉門,收藏在冰箱跟廚房的牆壁內側! 12/20 21:53
una283: 現在預售都畫60公分深冰箱真的太不實用 12/20 22:30
xayile: 包養SD = aSugarDating 12/20 22:30
una283: 但若要把冰箱拿到餐廳來放也不好擺 12/20 22:33
una283: 你這位置都不好擺但最好不要放廚房廚房已經很小很難用了 12/20 22:36
cc4: 改拉門或改開放式廚房 12/20 23:23
idmaker: 1改法沒問題啊 這樣空間利用度不錯 12/20 23:40
kevinhaha: 冰箱拉到流理台對面,記得不要做L型流理台,使用率低 12/21 08:30
cazo: 閨蜜上包養網還推薦我... 12/21 08:30
moaice: 冰箱門要突出來,不然切齊牆面加上你左右又沒留空間的話 12/21 09:43
moaice: ,門會打不開 12/21 09:43
moaice: https://i.imgur.com/tYyH7sv.jpg 12/21 09:48
moaice: ,可以模擬一下 12/21 09:48
una283: 冰箱門卡廚房走道真的超不方便的找一家去試看看就知道 12/21 09:53
izilo: 包養? 12/21 09:53
moaice: 廚房流理台後,那個方型劃叉的位置不是冰箱位置,劃叉是 12/21 17:41
moaice: 代表到天花板,所以是電器櫃的位置,旁邊那個空間才是讓 12/21 17:41
moaice: 你放冰箱的 12/21 17:41
chingyiing: 回樓上,建商樣品屋的冰箱放在劃叉的空間,所以我一直 12/22 07:19
chingyiing: 覺得是放在那個叉 12/22 07:19
SEDAP: 台全最的包養SD上線啦! 12/22 07:19