https://i.imgur.com/0SNkqK8.jpg
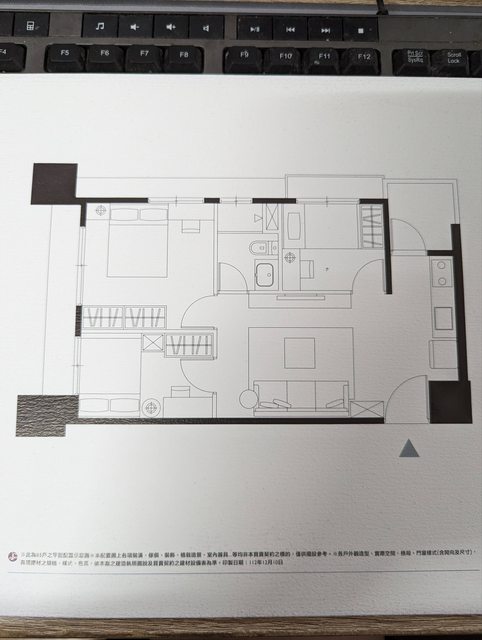
這房屋是26.51坪,實際應是約18坪大小 寬從門和廚房來看約5公尺,這樣長就約10公尺 這房優點是3房包括浴室都有開窗 缺點是看起來客廳沒窗會暗 客廳電視後的房間大小可能就是一張小桌加單人床 陽台可能只有一台洗衣機加一些曬衣空間 還有那些該注意的嗎? 或會想要怎樣變更呢? ---- Sent from BePTT on my Google Pixel 7 Pro -- ※ 發信站: 批踢踢實業坊(ptt.org.tw), 來自: 136.23.35.35 (臺灣) ※ 文章網址: https://ptt.org.tw/home-sale/M.1702913414.A.BF8
ceca: 你為啥要變更?12/18 23:31
ceca: 不知道為啥變更,別人怎樣給你意見?12/18 23:31
s7024546: 扣陽台實際是16坪12/18 23:35
pharPSYde: 這實際一定不到18坪 12/18 23:50
Keade0325: 客廳要有光就是動+1的房間, 改成和室 開放書房 12/19 00:00
odemagus: 亞洲最大包養網上線啦 12/19 00:00
awazikat: 實際上那房就不應該存在,這房連餐桌都沒有 12/19 00:11
rainbowcatch: 客廳後房間改成多功能書房, 整片落地玻璃 加窗簾 12/19 00:15
rainbowcatch: 。 這樣客廳就有採光 12/19 00:15
e22346845: 看起來是把餐廳拿掉改成+1房 12/19 00:27
iceonly: 這是標準三房啊;小次臥外牆同時是電視牆,拆了牆壁又短 12/19 00:56
yes500: 我哥上包養網被我抓包.. 12/19 00:56
iceonly: 不能裝電視 12/19 00:56
iceonly: 是可以做半高牆之類的電視牆,但自己來有風險,直接找設 12/19 00:57
iceonly: 計師吧 12/19 00:57
plcc122: 第一個想到也是打掉+1房,用旋轉電視架或半牆 12/19 07:26
indoman: 房間門打開就有陽光了 12/19 08:22
alexantiy: 有人包養過洋鬼子嗎 12/19 08:22
indoman: 最大問題是收納吧... 12/19 08:23
uevol123: +1房的位置原本應該是餐桌 12/19 08:28
ceca: 改善客廳光線的目的是甚麼?自住?轉賣?收租? 12/19 09:44
ceca: 目的很重要啊 12/19 09:44
ProE: 2房,1餐,縮廚,移冰箱,增玄關 1衛 12/19 10:55
sowrey: 有錢人為啥都想包養 12/19 10:55
sagarain: 要考慮光線 首先要知道方位跟至少南北部啊 12/19 12:20
sagarain: 再來雙面採光 哪裏有光拆哪裡 12/19 12:21
tfshs0823: 最小房改開放空間,順便解決暗廳 12/19 14:59