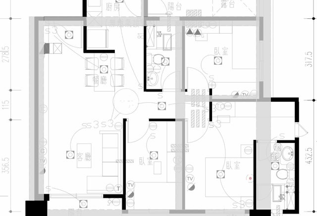
大家好,我的房子因為是先建後售的原因, 無法進行客變, 加上為了想要控制預算, 想要用軌道燈、吸頂燈作為主燈光即可, 不做天花板。 然而發現, 因為室外機擺放的位置問題, 加上不想做天花板, 導致我的冷氣管線都需要沿著牆面走, 會有部分冷氣機的路徑很長。 以下是我的很認真畫了圖, 想請教一下這樣的想法是否妥適~ 第一張圖先給大家樑柱的概念 https://i.imgur.com/wOtS8CE.jpeg
接下來有三個問題嗚嗚 每個問題都有把圖的重點改以紅色繪製凸顯 https://i.imgur.com/smuvWaa.jpeg
https://i.imgur.com/g2Rts6p.jpeg
https://i.imgur.com/2VjeY0s.jpeg
如果如果...我的畫法沒問題的話 (樑柱牆面等我都有仔細想像之後才畫的) 我的成本主要就落在 1.冷氣師傅走管 2.冷氣管路整理包覆 3.木作假樑 4.排水管挖牆 好奇這些價格大概會怎麼算呢 謝謝~ ----- Sent from MeowPtt on my iPhone -- ※ 發信站: 批踢踢實業坊(ptt.org.tw), 來自: 27.242.129.209 (臺灣) ※ 文章網址: https://ptt.org.tw/home-sale/M.1700370785.A.7D7
yam193431: 1&2費用你取大型賣場標準安裝2倍,你的問題在外機有些11/19 13:38
yam193431: 型號冷媒打不了那麼遠,選擇會變少11/19 13:38
yam193431: 3.你取一根假樑至少6000-你很有美學要求會更貴。排水11/19 13:41
yam193431: 要現場看斜度夠不夠跟你能不能接受透明管外露11/19 13:41
fo11ow: 1跟2不是什麼問題 頂多就是拉比較長需要買更大的噸數,因11/19 13:44
schlemm: 亞洲最大包養平台上線了11/19 13:44
fo11ow: 為中間消耗的關係,效能變差。3 你要做那麼長的包樑乾脆考11/19 13:44
fo11ow: 慮間接照明一起做算了 4看你牆壁 不過一個洞幾千 跑不掉吧11/19 13:44
fo11ow: 還要確定中間沒有其他線路 我覺得你要不要考慮做個五公分11/19 13:44
fo11ow: 的天花板 不然就是全室間接照明11/19 13:44
gyqmo: 其實若只包冷氣銅管,天花板不會低到哪去啦11/19 15:00
Wirol: 包養SD = SugarDaddy?11/19 15:00
gooooogle: 我當初也是不想做天花板,結果四台冷氣管線要拉到漂亮+11/19 15:35
gooooogle: 包管價格差不多還很醜,後來直接平釘天花板,省心省事11/19 15:35
gooooogle: ,完全看不到管線94爽11/19 15:35
gooooogle: 你要注意的是,冷氣銅管還有排水上移等費用,可能會超11/19 15:36
gooooogle: 乎你想像的貴11/19 15:36
marecht: 這個包養網正妹好多 是真的嗎11/19 15:36
gooooogle: 另外如果有做天花板,線路就做點到點,可以省不少費用 11/19 15:37
iloveapple: 美觀等於多付錢,懂 11/19 23:43
iloveapple: 建商要你多付錢 11/19 23:44
chiangww: 除了假樑,作不作天花板,這些成本都一樣,都需要。都 11/20 09:24
chiangww: 不作天花板了,作假樑的用意是什麼,奇怪 11/20 09:24
riokio: 真的有這麼多人在找包養 11/20 09:24
bettybuy: 拉線到美觀也不便宜哦 11/20 09:30
bettybuy: 包樑差不多一萬多 11/20 09:31
bettybuy: 最近四坪多房間包樑加天花板,四萬多不含油漆超貴, 11/20 09:31
gooooogle: 簡單選,你要藏線就直接弄天花板,不然就是請冷氣師傅 11/20 12:52
gooooogle: 拉好看一點,不要花錢去包 11/20 12:52
wiimas: 有人可以分析一下包養平台的差異嗎 11/20 12:52