朋友說有看到兩個府都建案 但官網沒看到 上網查一個說是地上物建案 可以請知道的人分享一下嗎? 感恩 ★以下為加強提醒請勿刪除★ 1.發文前請詳閱並遵守板規 2.本類別為提問專用,限台南特定相關事件資訊 認定方式:問題的內容條件 而非發文者的居住地 3.請參考 #13wWJAy2 (Tainan) [公告] 關於問問題與回答問題 a.是否先做過功課?(爬文+精華區+孤狗) b.把參考的資料貼出來,提出不懂的地方 4.若文章內容條件與台南無相關將不通知直接刪文,註明區域也方便板友提供資訊 (哪裡&PO在台南板≠台南點) -- ※ 發信站: 批踢踢實業坊(ptt.org.tw), 來自: 136.23.34.89 (臺灣) ※ 文章網址: https://ptt.org.tw/Tainan/M.1708272113.A.88E
smallreader: 路過可以看一下工地告示 02/19 00:21
joalin76: 321巷口有一個、小東門隔壁也一個 02/19 00:41
smallreader: https://maps.app.goo.gl/RtPDBA3WQc1vyQGp6 小東門 02/19 00:58
smallreader: 第一行xx投資公司 第二行許錦榮建築師事務所 02/19 01:03
smallreader: https://reurl.cc/Z9EEX6 另一棟321巷的 02/19 01:14
slot365: 有錢人為啥都想包養 02/19 01:14
smallreader: 營建署履歷只能往前查到109沒查到108年的字號 02/19 01:16
smallreader: https://map.apps.goo.gl/LHhbxbvuzyq7zmhp8 321巷的 02/19 01:22
smallreader: https://reurl.cc/mr77rV 小東門隔壁的 好了都查到了 02/19 01:31
smallreader: ^地號跟街景拍到的資訊一樣(即使網頁最下面地圖點錯) 02/19 01:34
smallreader: https://reurl.cc/VN777A 110年會議紀錄 提案一二2間 02/19 02:25
colortea: 亞洲最大包養網上線啦 02/19 02:25
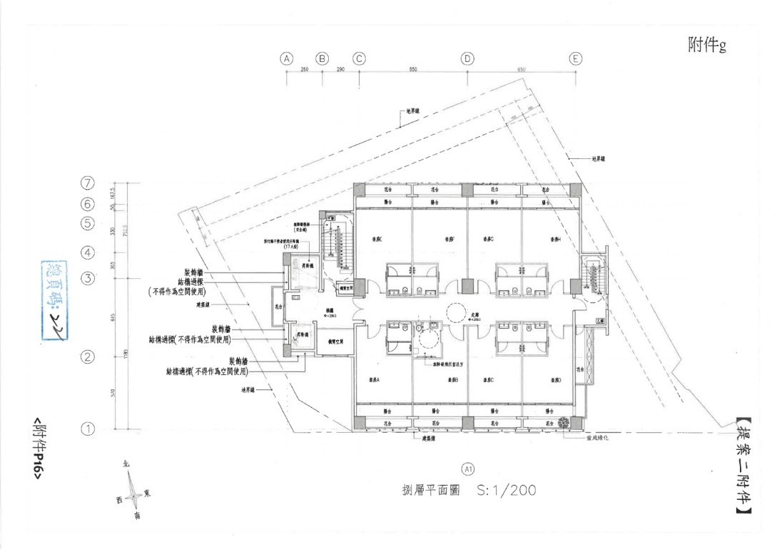
smallreader: 附件P1-P11,P12-P23平面圖可參考 02/19 02:25
smallreader: 公園北路上的 看起來是48間套房 屋頂有游泳池的旅館 02/19 02:35
smallreader: 公園路上的 看起來是8層樓有6戶豪宅 02/19 02:38
smallreader: 隨便看圖說故事 請不要引用我的話XD 02/19 02:39
smallreader: 都拜google大神 上面這個文件是掃描檔但卻能搜到OCR 02/19 02:51
glenber: 我哥上包養網被我抓包.. 02/19 02:51
smallreader: 光學辨識出來的文字 真是不可思議 02/19 02:51
smallreader: https://reurl.cc/L7KgE4 笑了 原來還自帶雲文件縮址 02/19 02:54
smallreader: https://i.imgur.com/xq8MiIZ.jpg 02/19 03:00
smallreader: 室外逃生梯(臨小東門那面)也是很合理的事~ 02/19 03:00
smallreader: 啊幹真的指鹿為馬亂講 上面這張是321巷豪宅的 是剖面 02/19 03:07
Kimbel: 有人包養過洋鬼子嗎 02/19 03:07
smallreader: 圖...外面看不到樓梯的啦 02/19 03:07
smallreader: 說旅館東面有突出一條(蓋起來的)樓梯道倒是沒錯 02/19 03:13
smallreader: 但安全梯跟兩座電梯是在西面 02/19 03:15
smallreader: https://i.imgur.com/unFUmgC.jpg 02/19 03:19
smallreader: https://i.imgur.com/8rEb68o.jpg 02/19 03:23
tale1890: 有錢人為啥都想包養 02/19 03:23
smallreader: https://i.imgur.com/H8y4NCX.jpg 02/19 03:26
smallreader: 本來圖檔是沒那麼好找的吧 卻因緣際會找到公開的記錄 02/19 03:55
smallreader: https://i.imgur.com/mx9MygU.png 02/19 05:22
smallreader: 板面積350.41m2去算 估計約82坪? (非專業亂框) 如果 02/19 05:22
smallreader: 從圖上給的尺寸 改用正方形算 是92坪左右 02/19 05:22
waterway: 有人被洋鬼子包養過嗎 02/19 05:22
smallreader: 同樣的請不要引用我的話 隨便看看就好XD 02/19 05:27
smallreader: 應該要把兩個機電空間及安全梯扣掉去算,算出是88坪 02/19 05:42
smallreader: 欸沒有,改用圖上真實尺寸去算黃色面積,是80坪剛好 02/19 05:48
smallreader: 那樓地板面積應該比我框藍色部分再多一點 很接近了 02/19 05:55
zirong: 原來公園北路那棟是旅館啊!不知道是府都自己要經營,還 02/19 07:58
mark1888: 到底要多有錢才會想包養 02/19 07:58
zirong: 是蓋好跟其他飯店業合作?至於公園路上的豪宅,應該自己人 02/19 07:58
zirong: 就買光了。 02/19 07:58
truffaut: 橋昱也跑到南科台一線善化小新里台啤對面推大樓案 02/19 15:08
truffaut: https://imgur.com/a/FCC2XgM 公園路321巷建案 02/19 15:20
stella1023: 兩棟很近,但也看不出來是蓋什麼 02/19 16:09
Quaranta: 包養SD = aSugarDating 02/19 16:09